Skip links

The Eclectic House

Location : Ahmedabad
Site area : 1300sqft
Built up Area : 2700 sqft
Status : Completed, 2023
Principal Architect : Mudra Shah
Team : Gaurav Kumar, Ayush Kankane

The Eclectic Residence, designed by The Design Umbrella, stands as a striking example of architectural ingenuity in the densely built fabric of eastern Ahmedabad’s historic core. This residential project, situated on a constrained plot bordered by roads on the south and east and adjacent to neighboring structures on the north and west, posed a significant challenge in accommodating numerous living spaces within a limited area.

The Eclectic House

Location : Ahmedabad
Site area : 1300sqft
Built up Area : 2700 sqft
Status : Completed, 2023
Principal Architect : Mudra Shah
Team : Gaurav Kumar, Ayush Kankane

The Eclectic Residence, designed by The Design Umbrella, stands as a striking example of architectural ingenuity in the densely built fabric of eastern Ahmedabad’s historic core. This residential project, situated on a constrained plot bordered by roads on the south and east and adjacent to neighboring structures on the north and west, posed a significant challenge in accommodating numerous living spaces within a limited area.
The architectural response to this challenge is a meticulously crafted plan where core functional areas are strategically aligned along the road-facing edges. The southern edge features an open space setback, which serves to provide light and air to the primary living areas. In contrast, the eastern edge, devoid of an open space setback, has minimal window openings to maintain privacy and optimize spatial efficiency.

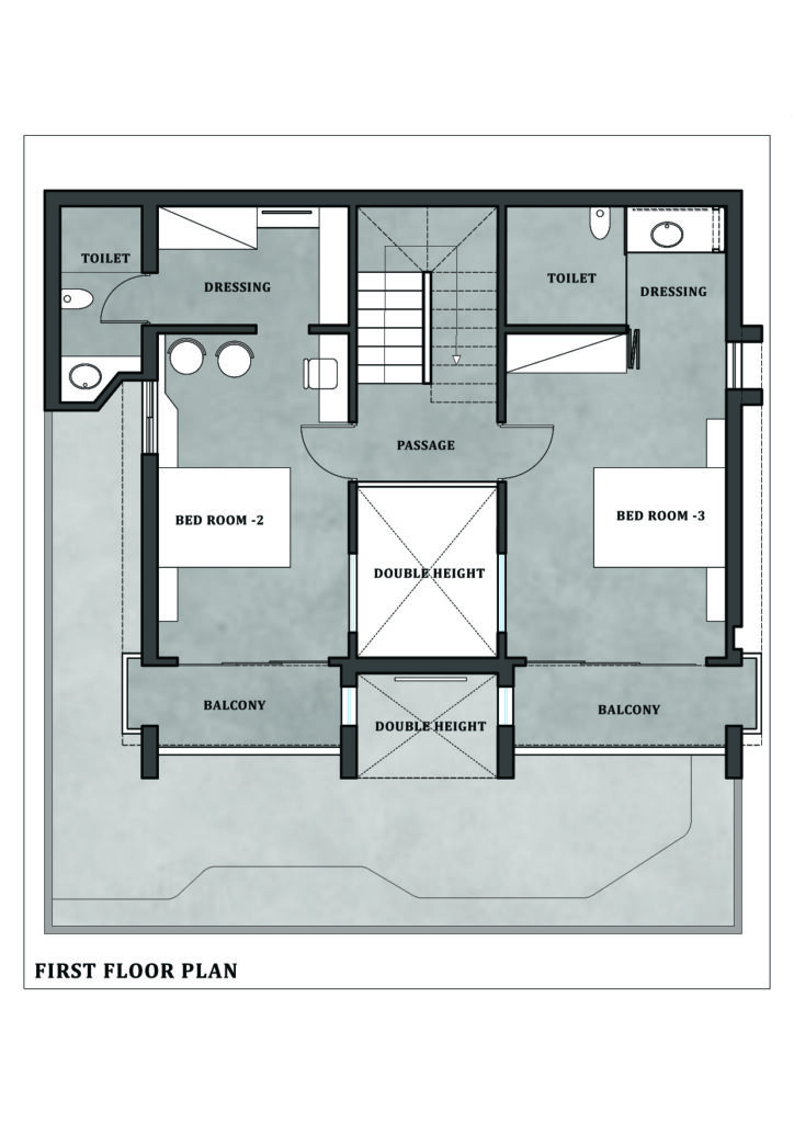
Circulation elements, including storage and washrooms, are positioned along the common walls shared with adjacent properties. The washrooms are placed at the corners of the building, facilitating effective ventilation and streamlined plumbing.

From an external perspective, the design is a dynamic composition of volumes and overhangs, creating a complex interplay between the two predominant boundary walls. The south elevation, in particular, is characterized by a play of geometric forms and projecting elements that contribute to a visually engaging facade. Exposed stone cladding enhances the tactile and visual richness of the central volume, highlighting the architectural intent and adding a layer of sophistication to the residence’s exterior